

![]() |



|
工作电源 |
DC 110V~300V或AC 85~265V |
|
工作环境 |
温度:-20℃~+70℃ 湿度:≤95%RH |
|
环境温度测量范围 |
-20℃~+80℃ |
|
接点温度测量范围 |
-20℃~+150℃ |
|
加热接口 |
无源输出(负载<300W) |
|
降温接口 |
无源输出(负载<300W) |
|
接点测温报警接口 |
无源输出(负载<300W) |
|
强制闭锁接口 |
无源输出(负载<300W) |
|
介质强度 |
≥AC2000V |
|
绝缘性能 |
≥100MΩ |
|
温度精确度 |
≤±1℃ |
|
湿度精确度 |
≤±2%RH |
|
动态闪烁频率 |
1次/秒 |
|
人体接近感应时间 |
≤3秒 |
|
通讯接口 |
RS485(隔离),采用MODBUS-RTU通讯协议 |
|
RS485通讯距离 |
<1200米 |
|
通讯波特率 |
1200bps、2400bps、4800bps、9600bps可设置 |
|
状态指示方式 |
开入量与LED数码显示为动态配置关联关系 |
|
抗电磁干扰性能 |
符合IEC255-22的标准规定 |
|
温度传感器类型 |
感应取电无线传输 |
|
无线模块收发距离 |
空旷场合可达30米 |
|
液晶显示分辨率 |
1℃ |
一、模拟显示部分与功能(注:下图为常规面膜图、具体面膜图以实物为准)
01 断路器合指示 10 语音输出
02 断路器分指示 11 操作键盘
03(1)、03(2)工作位置指示 12 储能旋钮
04(1)、04(2)试验位置指示 13 远方/就地转换开关
05 接地开关合指示 14 分/合闸转换开关
06 接地开关分指示 15 人体感应
07 储能指示 16 带电显示
08 液晶显示界面 17 闭锁
09 指示灯区 18 验电核相
1.1、断路器状态显示
断路器合闸并且分闸回路完好时,红色01模拟条发光;
断路器分闸并且合闸回路完好时,绿色02模拟条发光。
1.2、手车位置显示
无源触点输入, 工作位置触点闭合时,红色03①、03②垂直模拟条发光,显示断路器位于工作位置。
试验位置触点闭合时,绿色04①、04②水平模拟条发光,显示断路器位于试验位置。
手车位于试验位置与工作位置之间时,发光条03①、03②和04①、04②同时闪烁。
手车移出开关柜时,红色03①、03②和绿色04①、04②发光条均不发光,表示手车已断电。
1.3、接地开关位置显示
无源触点输入闭合,红色05 垂直模拟条发光,显示接地开关合闸;
无源触点输入断开,绿色06 斜向模拟条发光,显示接地开关分闸。
1.4、弹簧储能显示
无源触点闭合,黄色07 指示灯发光,显示断路器已储能。
1.5、带电显示及闭锁功能
LED启辉电压(KV):三相同时带电,额定相电压×(0.15~0.65)。
闭锁启控电压(KV):三相同时带电,额定相电压 ×0.65。
当三相同时不带电时,闭锁解除灯亮,启动电磁锁动作。
1.6、自动加热除湿控制及温湿度数字显示功能
可带2路温湿度传感器,显示现场环境的温湿度数值,并且用户可根据需要自行设置加热/除湿/排风输出的上下限值。当环境湿度大于设定湿度的上限值或环境温度小于设定温度的下限值时,启动加热;当环境湿度小于设定湿度的下限值且环境温度大于设定温度的上限值时,停止加热;当环境温度≥50℃时,无条件停止加热,防止过热损伤。
1.7、人体感应探头
当有人站在柜前时,启动柜内自动照明。
1.8、手动照明
按下操作键盘中的照明键,手动启动柜内照明(显示屏上方有照明两字显示),重复按键则为关闭手动照明。
1.9、智能语音防误提示功能
当断路器合闸状态,误将手车从试验位置推至工作位置时,语音提示“请分断路器”。
接地开关合闸状态,误将手车从试验位置推至工作位置时,语音提示“请分接地开关”。
断路器合闸状态、接地开关合闸状态,误将手车从试验位置推至工作位置时,语音提示“请分断路器、请分接地开关”。
当柜体主回路送电时,语音提示“本回路已带电”。
1.10、开关转换功能
装置面板上设有分闸/合闸转换开关(或按钮)、远方/就地转换开关、储能开关等操作开关,方便用户操作。
1.11、通讯功能
装置具有RS485通讯接口,采用modbus-RTU协议,波特率1200bps~9600bps可设置。
1.12、温湿度传感器断线报警功能
当主机没有检测到温、湿度传感器信号时,显示屏就会显示- - -。
1.13、无线测温功能
可以同时测量多路电气接点温度,当测量温度大于设定跳闸和告警值时,装置输出跳闸或告警信号。每台主机标准配置3~9点测温(最大可以接收15个测量点温度)。接点温度传感器采用感应取电方式自主获取工作电源,并在负责电流5A~5000A以上的范围内长期持续稳定工作,实现免维护的高压电气接点温度监测。
1.13.1、结构与安装
1.1、传感器外形结构图:
传感器外形图
传感器结构尺寸图
1.2、温度传感器安装
主要安装在移开式开关柜断路器动触头,固定式开关柜在刀闸触点附近捆绑式安装。
1)安装前柜体要停电。
2)将取电合金带传入温度传感器及两个硅胶固定垫,把温度传感器底部固定在动触头梅花触指上表面,确定位置后开始固定安装位置,将合金带一端穿过另一端的卡扣并慢慢拉紧,拉紧后用工具锁定卡扣,如在固定柜刀闸附近安装则可围绕刀闸臂稍作整形后拉紧,完成安装。
1.3、安装举例

1.13.6、无线测温装置应用框架图
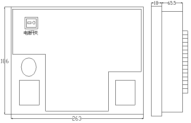
二、安装尺寸与接线图
2.1、安装尺寸
嵌入式安装 外形尺寸:263mm×186mm×85 mm 开孔尺寸:249mm×173mm
4.2、接线图(此图为常规端子图、具体端子图以实物为准)
三、显示与设置说明
3.1、显示
高清晰LCD数据显示。每按一次【↓】键,向下翻动一屏,到最后一屏自动返回第一屏。出厂设定自动循环显示时间为8秒。
3.1.1、温湿度显示(如图1):
A路温度21℃,湿度 68%;B路温度20℃,湿度 69%。
(图1)
3.1.2、无线接点温度显示
图2分别显示:第1路(A1)温度20℃、第2路(b1)温度20℃、第3路(C1)温度21℃、Id表示通讯地址为00。
(图2)
图3分别显示:第4路(A2)温度21℃、第5路(b2)温度21℃、第6路(C2)温度20℃、bP表示波特率为1200 bps。
(图3)
图4分别显示:第7路(A3)温度20℃,第8路(b3)温度21℃,第9路(C3)温度20℃。
(图4)
3.1、设置说明
按设置键进入设置菜单,系统进入00屏(如图5),屏幕出现“1111”,通过按键【↑】循环移动光标和按键【↓】数值递增把“1111”改为“1116”(密码1116),按设置键确认进入01屏,如密码错误将退回温湿度显示屏。
图5
01屏可设置温度/湿度上限值、下限值数据(如图6)。A-行:设置温度的上限值为15℃、下限值为05℃;B-行:设置湿度的上限值为95%、 下限值为85%。通过按键【↑】循环移动光标和按键【↓】数值递增改变所要设定数字,按设置键存储数据,同时进入下一屏。
图6
02屏可设置排风数据、通讯地址及波特率(如图7)。F-行:设置排风上限值为60℃、下限值为50℃;db行:前两位数为通讯地址(当在通讯时液晶的右上角会有“电话”闪烁);后两位为波特率,可设置(12为1200bps、24为2400bps、48为4800bps、96为9600bps),通过按键【↑】循环移动光标和按键【↓】数值递增改变所要设定数字,按设置键存储数据,同时进入下一屏。
图7
03屏到09屏(保留):出厂前已设置好、客户不用设置。
10屏可设置无线测温报警数据(如图8)。C1行:设置无线测温报警数据为上限为55℃、下限为50℃。C2行:保留。
图8
11屏保留,出厂前已设置好(如图9)。
图9
12屏保留,出厂前已设置好(如图10)。
图10
四、通讯
4.1、引言
本产品标准配置了一路RS485通讯接口,采用MODBUS-RTU通讯协议。理论上在一条通讯线路上最多可以同时连接32台仪表,通讯连接应使用带有铜网的屏蔽双绞线,线径不小于0.5mm²。布线时应使通讯线远离强电电缆或其他强电场环境,最大传输距离为1200米,典型的网络连接方式如下图所示,用户可根据具体情况选用其他合适的连接方式。
MODBUS RTU 是一种国际的、开放的现场总线标准。作为一种很容易实现的现场总线协议,在全世界范围内,MODBUS得到了成功的应用。应用领域包括生产过程中的自动化、过程控制和楼宇自控。MODBUS协议在一根通讯线上采用主从应答方式的通讯连接方式。首先,主计算机的信号寻址到一台唯一地址的终端设备(从机),然后,终端设备发出的应答信号以相反的方向传输给主机,即半双工的工作模式。
MODBUS协议只允许在主机(PC,PLC 等)和终端设备之间通讯,而不允许独立的终端设备之间的数据交换,这样各终端设备不会在它们初始化时占据通讯线路,而仅限于响应到达本机的查询信号。
采用串行通讯,8个数据位,1个起始位,1个停止位,无奇偶校验位。
上、下行命令由地址码、功能码、数据区和CRC-16校验码组成。
采用高字节在前、低字节在后、高位字在前、低位字在后的原则(校验码除外)。
帧是传送信息的基本单元,MODBUS协议中主机与从机采用相同的帧格式。
帧以至少3.5个字节的停顿时间开始,同样以至少3.5个字节的停顿时间标志帧的结束。整个帧必须作为连续的流传送,如果帧完成之前有超过1.5个字节的停顿时间,从机将重新开始一个新帧的接收。RTU帧格式如下所示。
|
开始 |
地址码 |
功能码 |
数据区 |
校验码 |
结束 |
|
四个字节的停顿时间 |
1 字节 |
1 字节 |
N 字节 |
2 字节 |
四个字节的停顿时间 |
4.3.1、地址码(Address)
地址码用来标识由哪个从机与主机通讯,每个从机具有唯一的地址码,主机发送的地址码表明将发送到的从机地址,从机发送的地址码则表明回送的从机地址。用户可使用的地址为1~247,其它地址保留。
4.3.2、功能码(Function)
功能码表示从机要执行何种功能。下表列出了仪表所支持的功能码及其的定义和具体操作。
|
功能码 |
定义 |
操作 |
|
03H |
读寄存器 |
读取一个或多个寄存器的数据 |
|
10H |
写一个或多个连续寄存器 |
修改定值 |
4.3.3、数据区(Data)
数据区随功能码不同而不同,这些数据可以是数值、参考地址等。例如:功能码03H告诉仪表读取寄存器的数值,则数据区必须包含要读取寄存器的起始地址及读取长度。
4.3.4、校验码
校验码用于主机或从机判断接收到的数据是否出错,使系统通讯更可靠。
MODBUS-RTU采用CRC-16(16位循环冗余校验码)校验方法,包含16位二进制。CRC校验码由发送端计算,放置于发送信息的尾部。接收端重新计算接收到的信息的校验码,并与接收到的校验码相比较,如果二者不相符,则表明通讯出错。
出错处理
当仪表检测到了校验码出错以外的错误时,将向主机回送信息,功能码的最高位置为1,即从机返送给主机的功能码是在主机发送的功能码的基础上加128。从机返回的错误信息帧格式如下:
|
地址码 |
功能码 (最高位为1) |
错误码 |
校验码 |
|
|
低字节 |
高字节 |
|||
|
1字节 |
1字节 |
1字节 |
1字节 |
1字节 |
错误码如下:
|
01H |
非法的功能码 |
接收到的功能码仪表不支持 |
|
02H |
非法的数据地址 |
接收到的数据地址超出仪表的范围 |
|
03H |
非法的数据值 |
接收到的数据值超出相应地址的数据范围 |
4.5.1、读寄存器(功能码03H)
例如需要读取通讯地址为01H装置的前3个高压接点温度寄存器数值,主站下发帧格式:
(十六进制发送) 01 03 01 08 00 03 85 F5
|
主站发送 |
字节数 |
发送内容 |
说明 |
|
|
开始符 |
4个字节时间停顿 |
数据帧开始的间隔停顿时间 |
||
|
从站地址 |
1 |
01H |
发送到地址为01H的从站设备 |
|
|
功能码 |
1 |
03H |
读寄存器功能码 |
|
|
起始寄存器地址 |
高字节 |
2 |
01H |
数据的起始地址(0108H寄存器是第1路接点温度) |
|
低字节 |
08H |
|||
|
寄存器个数 |
高字节 |
2 |
00H |
读取3个寄存器(共06个字节) |
|
低字节 |
03H |
|||
|
校验码 |
低字节 |
2 |
85H |
由主站计算得到的CRC校验码 |
|
高字节 |
F5H |
|||
|
结束符 |
4个字节时间停顿 |
数据帧结束的间隔停顿时间 |
||
从站返回帧格式:
(十六进制发送) 01 03 06 00 30 00 2F 00 2F 11 64
|
从站响应 |
字节数 |
发送内容 |
说明 |
|
|
开始符 |
4个字节时间停顿 |
数据帧开始的间隔停顿时间 |
||
|
从站地址 |
1 |
01H |
来自地址为01H的从站设备 |
|
|
功能码 |
1 |
03H |
读寄存器功能码 |
|
|
读取字节数 |
1 |
06H |
共读取了6个字节数据 |
|
|
第1个寄存器数据 |
高字节 |
2 |
00H |
该测量值对应寄存器地址为0108H,低字节有效,十六进制数30H转换为十进制为48再减去修正值20为第1路实际接点温度28℃。 |
|
低字节 |
30H |
|||
|
第2个寄存器数据 |
高字节 |
2 |
00H |
该测量值对应寄存器地址为0109H,低字节有效,十六进制数2FH转换为十进制为47再减去修正值20为第2路实际接点温度27℃。 |
|
低字节 |
2FH |
|||
|
第3个寄存器数据 |
高字节 |
2 |
00H |
该测量值对应寄存器地址为010AH,低字节有效,十六进制数2FH转换为十进制为47再减去修正值20为第3路实际接点温度27℃。 |
|
低字节 |
2FH |
|||
|
校验码 |
低字节 |
2 |
11H |
由从站计算得到的CRC校验码 |
|
高字节 |
64H |
|||
|
结束符 |
4个字节时间停顿 |
数据帧结束的间隔停顿时间 |
||
4.5.2、写寄存器(功能码10H)
例如需要将设备的通讯地址从01H改为16H,主站下发帧格式:
(十六进制发送) 01 10 10 60 00 01 02 00 16 3F FF
|
主站发送 |
字节数 |
发送内容 |
说明 |
|
|
开始符 |
4个字节时间停顿 |
数据帧开始的间隔停顿时间 |
||
|
从站地址 |
1 |
01H |
发送到地址为01H的从站设备 |
|
|
功能码 |
1 |
10H |
写寄存器功能码 |
|
|
起始寄存器地址 |
高字节 |
2 |
10H |
写寄存器起始地址为1060H |
|
低字节 |
60H |
|||
|
写寄存器个数 |
高字节 |
2 |
00H |
写寄存器个数为1个 |
|
低字节 |
01H |
|||
|
字节个数 |
1 |
02H |
寄存器数据共2个字节 |
|
|
写入的数据 |
高字节 |
2 |
00H |
写入的数据为0016H(即新的通讯地址) |
|
低字节 |
16H |
|||
|
校验码 |
低字节 |
2 |
3FH |
由主站计算得到的CRC校验码 |
|
高字节 |
FFH |
|||
|
结束符 |
4个字节时间停顿 |
数据帧结束的间隔停顿时间 |
||
从站返回帧格式:
(十六进制接收)16 10 10 60 00 01 06 30
|
从站响应 |
字节数 |
发送内容 |
说明 |
|
|
开始符 |
4个字节时间停顿 |
数据帧开始的间隔停顿时间 |
||
|
从站地址 |
1 |
16H |
从站设备地址更新为16H |
|
|
功能码 |
1 |
10H |
写寄存器功能码 |
|
|
起始寄存器地址 |
高字节 |
2 |
10H |
起始寄存器地址为1060H |
|
低字节 |
60H |
|||
|
写寄存器个数 |
高字节 |
2 |
00H |
写寄存器个数为1个 |
|
低字节 |
01H |
|||
|
校验码 |
低字节 |
2 |
06H |
由从站计算得到的CRC校验码 |
|
高字节 |
30H |
|||
|
结束符 |
4个字节时间停顿 |
数据帧结束的间隔停顿时间 |
||
五、附录
5.1、只读寄存器地址表
|
寄存器地址 |
数据格式 |
功能 |
数据项名称 |
备注 |
|
|
读 |
写 |
||||
|
0101H |
XXXX |
* |
开关输入状态 |
HEX |
|
|
0102H |
XXXX |
* |
继电器输出状态 |
HEX |
|
|
0103H |
XXXX |
* |
第一路温度 |
HEX,[(HEX转DEC)-20] ℃ |
|
|
0104H |
XXXX |
* |
第一路湿度 |
HEX |
|
|
0105H |
XXXX |
* |
第二路温度 |
HEX,[(HEX转DEC)-20] ℃ |
|
|
0106H |
XXXX |
* |
第二路湿度 |
HEX |
|
|
0107H |
XXXX |
* |
室温 |
HEX,[(HEX转DEC)-20] ℃ |
|
|
0108H |
XXXX |
* |
高压接点温度1(A1) |
HEX,[(HEX转DEC)-20] ℃ |
|
|
0109H |
XXXX |
* |
高压接点温度2(B1) |
HEX,[(HEX转DEC)-20] ℃ |
|
|
010AH |
XXXX |
* |
高压接点温度3(C1) |
HEX,[(HEX转DEC)-20] ℃ |
|
|
010BH |
XXXX |
* |
高压接点温度4(A2) |
HEX,[(HEX转DEC)-20] ℃ |
|
|
010CH |
XXXX |
* |
高压接点温度5(B2) |
HEX,[(HEX转DEC)-20] ℃ |
|
|
010DH |
XXXX |
* |
高压接点温度6(C2) |
HEX,[(HEX转DEC)-20] ℃ |
|
|
010EH |
XXXX |
* |
高压接点温度7(A3) |
HEX,[(HEX转DEC)-20] ℃ |
|
|
010FH |
XXXX |
* |
高压接点温度8(B3) |
HEX,[(HEX转DEC)-20] ℃ |
|
|
0110H |
XXXX |
* |
高压接点温度9(C3) |
HEX,[(HEX转DEC)-20] ℃ |
|
|
0111H |
XXXX |
* |
高压接点温度10(A4) |
HEX,[(HEX转DEC)-20] ℃ |
|
|
0112H |
XXXX |
* |
高压接点温度11(B4) |
HEX,[(HEX转DEC)-20] ℃ |
|
|
0113H |
XXXX |
* |
高压接点温度12(C4) |
HEX,[(HEX转DEC)-20] ℃ |
|
5.2、可写寄存器地址表
|
寄存器地址 |
数据格式 |
功能 |
数据项名称 |
备注 |
|
|
读 |
写 |
||||
|
1060H |
XXXX |
* |
* |
设备通讯地址 |
HEX |
|
1061H |
XXXX |
* |
* |
通讯波特率 |
BCD码,低字节12、24、48、96,分别对应波特率1200、2400、4800、9600bps |
|
1063H |
XXXX |
* |
循显时间(秒) |
BCD码,低字节有效 |
|
|
107EH |
XXXX |
* |
* |
温度上限,温度下限 |
HEX,[(HEX转DEC)-50] ℃ |
|
107FH |
XXXX |
* |
* |
湿度上限,湿度下限 |
HEX |
|
1080H |
XXXX |
* |
* |
排风上限,排风下限 |
HEX,[(HEX转DEC)-50] ℃ |
|
1081H |
XXXX |
* |
* |
触点报警下限1和上限1 |
HEX,高字节为报警下限值,低字节为报警上限值 |
|
1082H |
XXXX |
* |
* |
触点报警下限2和上限2 |
HEX,高字节为报警下限值,低字节为报警上限值 |
5.3、状态字解析
操控显示状态可通过读取地址为0101H的寄存器查看(即开关量输入状态字),其数据定义为:
|
开关量输入对应寄存器的低字节解析 |
0101H |
|
|
第0位(B0):断路器合位置指示 0—分 1—合 |
||
|
第1位(B1):断路器分位置指示 0—分 1—合 |
||
|
第2位(B2):试验位置指示 0—分 1—合 |
||
|
第3位(B3):工作位置指示 0—分 1—合 |
||
|
第4位(B4):接地位置指示 0—分 1—合 |
||
|
第5位(B5):储能位置指示 0—分 1—合 |
||
|
第6位(B6):未定义 |
||
|
第7位(B7):未定义 |
举例:假如从寄存器0101H读出的数据为0004,将低字节转换为二进制数为00000100,可以看到为只有数据的第2位(B2)为1,表示此时试验位置指示为合,其他位置为分;如果从寄存器0101H读出的数据为0029,将低字节转换为二进制数为00101001,可以看到数据中的第0位(B0)、第3位(B3)、第5位(B5)都为1,表示此时断路器合位置指示为合、工作位置指示为合、储能位置指示为合,其他位置为分。
另外,对应0102H寄存器地址低字节为继电器输出,各继电器输出状态可通过读取地址为0102H寄存器低字节查看,其数据定义为:
|
继电器输出对应寄存器的低字节解析 |
0102H |
|
|
第0位(B0):A路加热继电器 1—输出 0—未输出 |
||
|
第1位(B1):A路降温继电器 1—输出 0—未输出 |
||
|
第2位(B2):B路加热继电器 1—输出 0—未输出 |
||
|
第3位(B3):B路降温继电器 1—输出 0—未输出 |
||
|
第4位(B4):触点报警继电器 1—输出 0—未输出 |
||
|
第5位(B5):照明开关继电器 1—开 0—关 |
||
|
第6位(B6):电磁闭锁继电器 1—输出 0—未输出 |
||
|
第7位(B7):未定义 |
六、运输与贮存
产品运输和拆封不应受到剧烈冲击,应根据GB/T15464《仪器仪表包装通用技术条件》的规定运输和储存。保存产品应在原包装内,保存的地方环境温度为-40℃~+70℃,相对湿度不超过85%,空气中无腐蚀性气体。产品在仓库里保存,应放在台架上,叠放高度不超过5箱,拆箱后,单只包装的产品叠放高度不超过3只。
七、保修期限及订货说明
产品自出厂之日起十二个月内,在用户遵守说明书规定要求进行操作和使用时(除去人为的破坏和操作失误以外造成的损坏)发现产品有功能、外观缺陷和不符合各项技术指标时,制造厂给予免费修理或更换。 订货时,请详细写明所需型号及功能要求等相关内容,以便能为您提供更精确之产品。
八、注意事项
安装和使用注意事项
使用前详细阅读本操作手册;
对应的温湿度传感器型号WS-02;
打耐压时拔掉所有接线端子;
使用时检查所有接线端子是否插紧;
安装发射模块时请先打开发射模块的开关,发射模块的编号要和主机机身上的回路值一一对应且同一面柜子上;固定发射模块时,用力适中,不能绑得过紧。
附表:常见故障排除
|
常见问题 |
原因分析 |
简单解决方法 |
|
加电源后设备无显示 |
电源未加到设备上 |
检查装置工作电源两端子上是否加入了正确工作电压。 |
|
没有状态显示 |
没接好线 |
检查装置17-23号端子是否插好,若已经插好,用短接线分别短接后面公共端和17-22端子,检查是否有相应的状态指示。 |
|
温湿度不显示或有一路温湿度不显示 |
温湿度传感器型号是否匹配 |
检查是不是WS-02型温湿度传感器。 |
|
主机、传感器线和温湿度传感器三者之间没连接好 |
检查主机、传感器线和温湿度传感器三者之间是否接插牢固。 |
|
|
开关量不变化 |
开关量动作电压不准确 |
检查外部节点类型是否与设备额定参数匹配; 检查外部接线是否正确。 |
|
没有接收到控制命令 |
检查通讯线路是否正确。 |
|
|
无法通讯 |
设备通讯地址不正确 |
检查设备地址是否与定义一致。 |
|
设备波特率不正确 |
检查设备通讯的波特率是否与定义一致。 |
|
|
通讯线路中断 |
检查通讯电缆是否断开。 |
|
|
接收不到温度传感器数据 |
设置地址已被改动 |
进入设置菜单查看地址是否正确。 |
|
线路负荷过低 |
待线路负荷恢复正常后查看温度数据。 |
|
|
温度传感器的编号和主机 回路值没对应好 |
检查温度传感器的编号和主机回路值是否一一对应安装在同一面开关柜内。 |

